物件詳細
※未公開物件をご覧いただくには、会員登録が必要です。

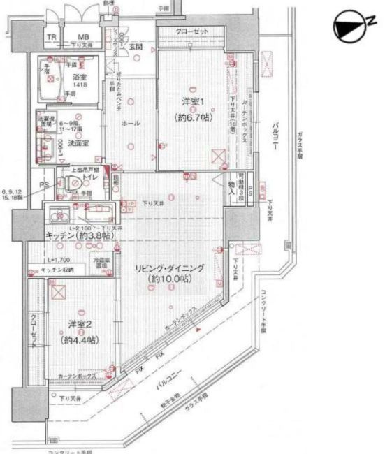
| 価格 | 3580万円 | 間取 | 2LDK | 面積 | 64.15m2 |
|---|
| 交通 | 南海高野線「堺東」駅徒歩12分 | 住所 | 大阪府堺市堺区北安井町2-6 |
|---|
◎平成21年建築
◎未入居
◎高齢者向の医療・介護サービス付きマンション
◎24時間365日常勤管理
◎大浴場あり
◎眺望良好
毎月のお支払い額例 円
3580万円 借入期間 年 金利 %
※頭金0円でボーナス払いなしの場合の金額です。
お客様のご用件により金利の優遇幅が変動する場合があります。
| 物件名 | マスターズマンションひまわり | ||
|---|---|---|---|
| 物件番号 | 001140 | 価格 | 3580万円 |
| 交通 | 南海高野線「堺東」駅徒歩12分 | ||
| 住所 | 大阪府堺市堺区北安井町2-6 | ||
| バス停最寄施設 | 築年月 | 平成21年10月築 | |
| 専有面積 | 64.15m2 | 階階建 | 7階/18階建 |
| 間取り | 2LDK | 間取り詳細 | |
| 建物構造 | RC | 総戸数 | 130戸 |
| バルコニー面積 | 22.26m2 | 管理費 | 円 |
| バルコニー方向 | 東 | 修繕積立費 | 円 |
| 駐車場・空状況 | 空有 | 駐車場月額 | 円 |
| 現況 | 空 | 管理形態 | 全部委託 常勤・ライフワンサポート |
| 引渡し時期 | 即時 | 取引態様 | 媒介 |
| 学区 | ・ | ||
| 設備 | 電気 上水道 下水道 オール電化 エレベーター オートロック 管理人室 モニター付インターホン システムキッチン 浴室乾燥 温水洗浄便座 サービス基本料20,000円/月 駐車場15,000~18,000円/月 |
||
| 更新日 | 2012/12/19 | ||
【会員様へ】未公開情報について
堺市中古マンション売買.comでは、売主様の「秘密厳守」を厳重に保護するにあたり、
インターネット掲載ができない物件情報については「未公開」とさせていただいております。
これらの情報については、不特定多数に閲覧されないためにも会員様へ直接お届けしております。
未公開情報の内容をご希望の会員様は、お気軽にお問い合わせください。
ご迷惑をおかけいたしますがなにとぞご容赦ください。

南海線堺東駅より徒歩12分、フェフェニックス通りの南側にある高齢者対応マンションです。市内の中心街にあたり公共機関が近くにある便利な所です。市役所までは約600mです。泉南生活協同組合が事業主です。